热门产品

MH型花架式龙门吊简介介绍:
花架式龙门吊也有花架龙门吊、衍架梁龙门吊、花架子龙门吊、衍架龙门吊的称呼。单梁花架龙门吊、双梁花架龙门吊、单主梁花架龙门吊、双梁花架龙门吊。
MH型花架式龙门吊规格型号:
1、花架龙门吊型号:MH型花架式龙门吊、MHE型花架式龙门吊;
2、花架龙门吊规格:1吨、2吨、3吨、5吨、10吨、16吨、20吨、可非标定做。
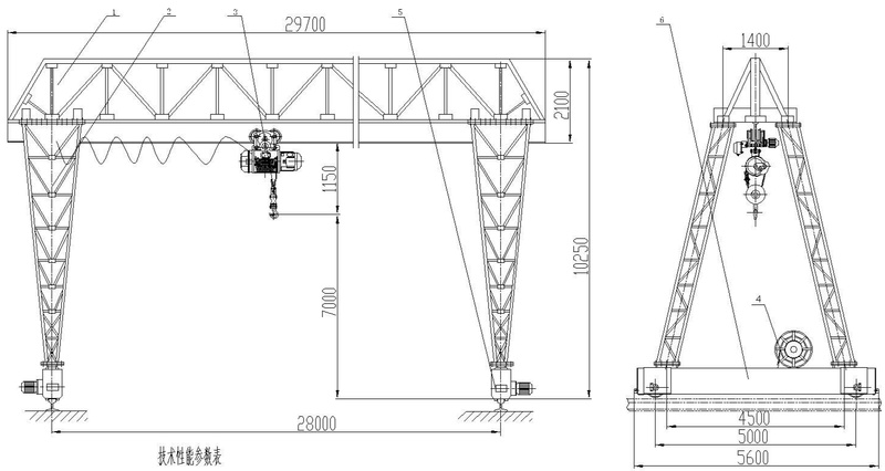
MH型花架式龙门吊结构图纸:

MH型花架式龙门吊技术参数:
1、跨度:17米、18米、21米、22米、24米、25米、27米、30米、35米、可非标定制。
2、起升高度:6米、9米、12米、18米、24米、30米、可非标订做。
3、工作级别:A3/M3;
4、主钩起升速度:0.3M/MIN、0.7M/MIN、0.8M/MIN、3M/MIN、7M/MIN、8M/MIN、可定做;
5、大车运行速度:10M/MIN、20M/MIN、30M/MIN、40M/MIN、可定制;
6、小车运行速度:20M/MIN、可非标定做;
以上参数需要根据实际起重量、跨度、起升高度设计生产,也可根据客户使用需要设计定做;
7、电源:三相交流 380V 50HZ 可订制其他电压(如出口国外,需要参考他国电源电压);
MH型花架式龙门吊适用范围:
花架龙门吊广泛适用于地铁施工、建筑工地、物流运输、铁路公路、仓库货场、水泥制品厂、机械装配厂、水电站等露天作业的场地中作起重运输装卸等工作,也适合于在室内车间工作。
MH型花架式龙门吊购买说明:
购买MH型花架龙门吊请请告知以下数据,以便我们能更快确认您的需求!
1、龙门吊起重量;
2、龙门吊跨度(轨道中心至导轨中心);
3、龙门吊起升高度(钩中心接地);
4、是否需要外悬(请提供外悬长度);
5、需要订购导轨和电缆吗?(请提供运行长度);
6、如果您有更多的详细资料,请告知,我们会更给出优惠的龙门吊价格。

贵州铜仁欧式单梁起重机
贵州六盘水MG型路桥提梁机
贵州毕节MG型公路提梁机
贵州铜仁LH型电动葫芦双梁
贵州毕节QZ型抓斗双梁起重
贵州安顺QA型电磁双梁起重
贵州遵义变频调速双梁起
贵州六盘水双梁桥式起重
贵州贵阳QD型双梁起重机
贵州六盘水欧式双梁起重



